Tous les profilés alu (péle-mèle)


Découvrez toute notre gamme seuils et profilé aluminium pour la menuiserie bois, PVC, aluminium, métal, verre adaptés aux portes et fenêtres intérieures extérieures, JOINT DUAL vous permet de choisir les seuils les mieux adaptés


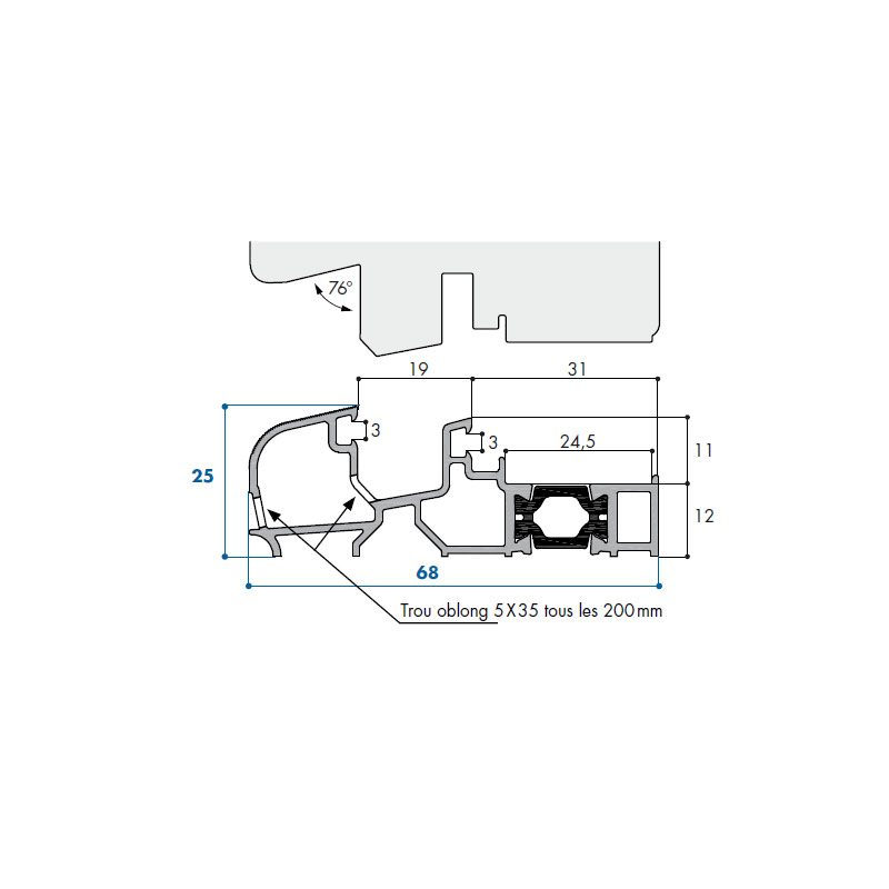
SEUIL HAUTEUR 25MM ANODISE ARGENT +RUPT THERMIQUE

SEUIL HAUTEUR 25MM ANODISE ARGENT +RUPT THERMIQUE

Application : Seuil conçu pour une menuiserie de 68 mm d'épaisseur Seuil aluminium hauteur 25, jeu de 12 mm
Barette polyamide. Rupture de pont thermique
Conseil de mise en oeuvre :
Etanchéité entre pied de dormant et seuil à réaliser avec mastic. Obturation des extrémités de la chambre de drainage à réaliser avec les bouchons 46003466.12 et mastic.


Référence Couleur Conditionnement
25/68 T A AR Anodisé argent 6.04 ML
thermique

POUR COMMANDER ou CONNAITRE NOS TARIFS DEGRESSIFS

ou